stripes

Browne & Co. project page

Retail PMS logo with navigation of pages

retail pms logo

Retail PMS project detail: Brown and Co.

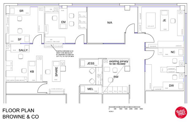
BROWNE & CO

Project: New office fitout, Melbourne
Project Schedule: 1 week
Project Scope: Retail PMS undertook a site survey of existing conditions, designed interior fitout, furniture layouts and designed miscellaneous joinery. Tendered project, appointed fitout contractor and provided a quantity surveying service to meet project budget.

Return to PROJECTS page